Schnellzüge K.P.E.V. (2)

Катаємо, розбираємо, порівнюємо та не забуваємо все це фотографувати!
Аватар користувача
Санёк-69
Повідомлень: 421
З нами з: 10 лютого 2017, 13:05
Имя: Александр
Звідки: Житомир
Мой типоразмер: НО/ТТ
Has thanked: 1302 times
Been thanked: 364 times

Schnellzüge K.P.E.V. (2)

Повідомлення Санёк-69 »

Продолжение.
Начало тут: viewtopic.php?f=24&t=1731



С появлением скорых поездов, дальние переезды занимали меньше времени, и были не так утомительны для пассажиров. И всё же, для очень длительных поездок, особенно по маршрутам ночных расписаний, вагоны с сидячими местами не могли обеспечить должного комфорта. Для этого требовался новый тип вагонов, в которых пассажиры могли бы полноценно выспаться во время поездки.

Поначалу в Германии не было спальных вагонов собственных конструкций, и в составах первых немецких скорых поездов ходили 2-х, позже 3-осные, спальники CIWL:
S-01.jpg
S-02.jpg
S-03.jpg
На определённых этапах, почти все управления земельных дорог пробовали свои силы в постройке собственных спальных вагонов, но эти попытки ограничивались единичными экземплярами, так и не имевшими серийного продолжения.

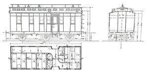
Единственным исключением стала Пруссия. Первый проект двухосного прусского спального вагона был принят к производству в 1876 году:
S-04.jpg
К сожалению, нигде не нашел изображений с интерьером этого вагона. Скорее всего, он мог соответствовать конструкции 2-осныхспальников CIWL того времени, в которых купе располагались вдоль вагона, а одноместные кресла со столиком между ними, трансформировались в спальное место, по типу того, как это осуществляется на нижних боковых местах в плацкартных вагонах:
S-05.jpg
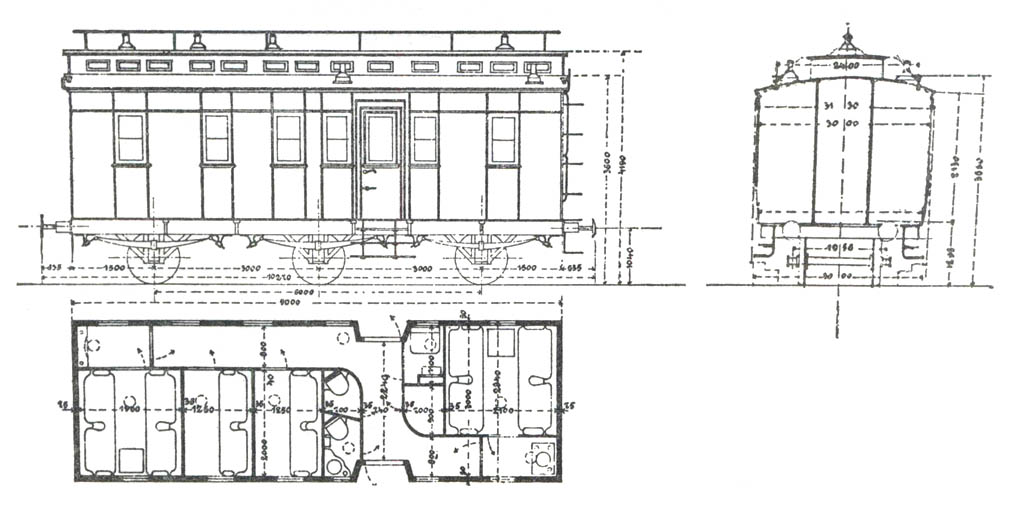
Первый проект оказался успешным, и с 1881 года начался выпуск новых типов 3-осных спальных вагонов KPEV, с поперечным расположением купе. Нижние полки цельной конструкции, верхние полки были двух типов, в одном случае они одновременно выполняли функцию спинки нижней полки, и при необходимости поднимались вверх, во втором случае фиксировались на стенке в сложенном состоянии, и при необходимости опускались вниз по тому же принципу, как и верхние полки в современных вагонах:
S-06.jpg
S-07.jpg
S-08.jpg
S-09.jpg
В 1884 году KPEV отказалась от использования спальных вагонов CIWL/ISG, и с 1885 года заказала постройку ещё одного нового типа 3-осных вагонов (как выглядел интерьер этих вагонов, неизвестно):
S-10.jpg
С 1886 начался выпуск различных конструкций 4-осных спальных вагонов с открытыми тамбурами. Характерной особенностью данных вагонов было наличие сквозного коридора вдоль одной стороны, и два туалета в концах вагона. Купе 2-х и 4-местные. 2-местые купе имели между собой дополнительное сообщение через небольшие двери в перегородке. По ситуации, 4-местные купе могли использоваться как купе обычных пассажирских вагонов, т.е., только с сидячими местами. Билет на сидячее место в 4-местном купе такого вагона был самым дешевым. Спальное место на верхней полке в 4-местном купе стоило дороже. Ещё дороже стоило спальное место на нижней полке. В свою очередь, спальные места в 2-местных купе стоили дороже, чем спальные места в 4-местных купе. И самым дорогим был билет, позволявший занимать одному пассажиру 2-местное купе.
S-11.jpg
S-12.jpg
S-13.jpg
S-14.jpg
S-15.jpg
S-16.jpg
S-17.jpg
Первые попытки постройки прусских спальных вагонов с закрытыми тамбурами относятся к 1889 году, когда на нескольких вагонах ранней постройки открытые тамбуры переделали в закрытые:
S-18.jpg
Серийный выпуск спальных вагонов KPEV с закрытыми тамбурами начался в 1890 году. Это была небольшая партия, вышедшая в период 1890-1891, из пяти вагонов, с нехарактерной для прусских вагонов бочкообразной крышей:
S-19.jpg
S-20.jpg
К сожалению, жизненный путь спальных вагонов KPEV, выпущенных до 1892 года, оказался недолгим. До 1906 года все эти вагоны подверглись различным переделкам. Какие-то из них были перестроены в салоны, какие-то в измерительные или санитарные, или в обычные пассажирские вагоны.
Аватар користувача
Санёк-69
Повідомлень: 421
З нами з: 10 лютого 2017, 13:05
Имя: Александр
Звідки: Житомир
Мой типоразмер: НО/ТТ
Has thanked: 1302 times
Been thanked: 364 times

Schlafwagen K.P.E.V.

Повідомлення Санёк-69 »

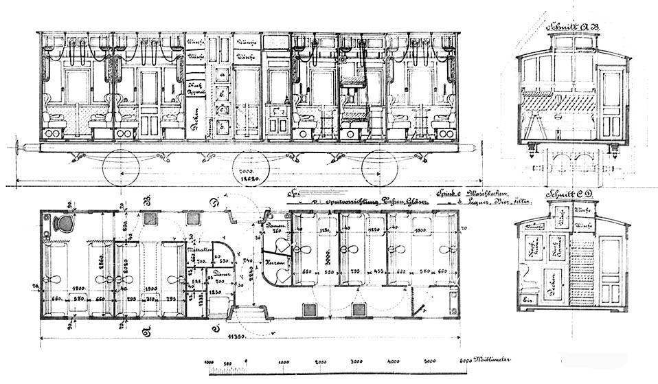
С 1892 года конструкции спальных вагонов KPEV, по внешним параметрам, стали идентичны выпускавшимся в то время пассажирским D-Zug-Wagen_нам (с закрытыми тамбурами, переходы между вагонами защищены сильфонами). Как и предшествующие типы, спальные вагоны образца с 1892 года, имели 2-х и 4-местные купе. Верхние полки одновременно являлись спинками нижних полок, при необходимости трансформировались в верхнее спальное место
S-21.jpg
S-22.jpg
S-23.jpg
s-24.jpg
S-25.jpg
S-26.jpg
С 1897 года спальные вагоны выпускались только с 2-местными купе:
S-27.jpg
S-29.jpg
В 1900 году появился первый 6-осный спальный вагон. Это был единичный экземпляр, представленный Van der Zypen & Charlier на Парижской выставке того года:
S-30.jpg
S-31.jpg
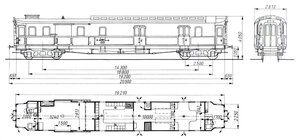
С введением новых стандартов дизайна для вагонов скорых поездов т.н. "Прусского типа", с 1902 года спальные вагоны приобрели те же внешние черты:
S-32.jpg
S-33.jpg
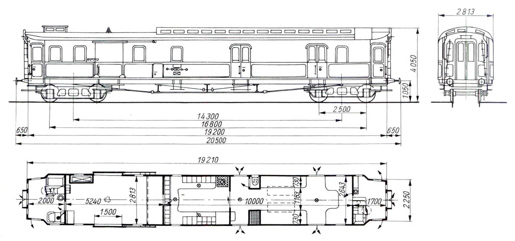
С 1904 года все спальные вагоны KPEV выпускались только в 6-осном исполнении:
S-34.jpg
S-35.jpg
S-36.jpg
S-37.jpg
S-38.jpg
S-39.jpg
По сравнению с 4-осными предшественниками, поездки в таких вагонах стали намного комфортнее. 6-осный вагон меньше раскачивался, и имел более плавный ход.
Большинство вагонов-ресторанов, выпущенных после 1905 года, также были 6-осными.
В период 1906-1907г.г. было построено небольшое количество 6-осных D-Zug-Wagen_нов. Но более высокая стоимость таких вагонов себя не оправдала, и в дальнейшем, от производства 6-осных пассажирских вагонов решили отказаться.
Аватар користувача
Санёк-69
Повідомлень: 421
З нами з: 10 лютого 2017, 13:05
Имя: Александр
Звідки: Житомир
Мой типоразмер: НО/ТТ
Has thanked: 1302 times
Been thanked: 364 times

Re: Schnellzüge K.P.E.V. (2)

Повідомлення Санёк-69 »

Небольшой обзор ходовой части вагонов скорых поездов Пруссии

Первые конструкции 4-осных спальных вагонов KPEV оснащалась 2-осными тележками из кованых элементов. Из-за характерного внешнего вида боковых рам (имевших сходство с архитектурными элементами того времени), тележки получили название "Фахверковые":
D-01.jpg
D-02.jpg
D-03.jpg
Следующим этапом в развитии ходовой части немецких вагонов, стало появление штампованных тележек.
В 1890 году, по заказу администрации KPEV, разработкой новых моделей занялась компания Friedrich Krupp AG. Новые образцы штампованных тележек появились в конце 1891 года на первых прототипах пассажирских D-Zug-Wagen_нов. После показа в 1893 году на Всемирной выставке в Чикаго, эти тележки стали называться "Чикагскими":
D-04.jpg
D-05.jpg
в дальнейшем "Чикагские" тележки получили систему тройного подвешивания:
D-06.jpg
D-07.jpg
в 1895 году, с целью повышения прочности, изменилась форма боковых рам:
D-08.jpg
в таком виде они получили новое название "Preußische Regelbauart" ("Прусский стандартный дизайн", упрощенно - "Прусский стандарт"):
D-09.jpg
D-10.jpg
С начала 1900-х отдельные модели багажных вагонов комплектовались упрощенным вариантом тележек "Прусский стандарт" с двойным подвешиванием, более массово этими тележками комплектовались багажные вагоны поздних выпусков:
D-11.jpg
D-12.jpg
3-осные тележки также начинали свой путь с кованых конструкций:
D-13.jpg
D-14.jpg
позднее, самым распространенным типом 3-осных тележек стал "Прусский стандарт":
D-15.jpg
D-16.jpg
Самый поздний вариант, дорогих и конструктивно сложных 3-осных тележек (т.н. "гусиная шея"), присутствовал только у спальников и вагонов-ресторанов:
D-17.jpg
D-18.jpg
в общих чертах эти тележки имели сходство с конструкцией Pullman (в связи с чем, иногда упоминаются как "американские"):
D-19.jpg
а название "гусиная шея" они унаследовали от своих 2-осных предшественниц, выпускавшихся с 1908 года:
D-20.jpg
D-21.jpg
эти тележки также обязаны своим появлением американскому прототипу, выпущенному железнодорожной компанией Pennsylvania Railroad.
Характерная изогнутая форма продольных балансиров и послужила причиной того, что данный тип тележек получил название "гусиная шея" (иногда ещё упоминаются как "американские", "Пенсильванские", или "Тип Пенсильвания").
Аватар користувача
Санёк-69
Повідомлень: 421
З нами з: 10 лютого 2017, 13:05
Имя: Александр
Звідки: Житомир
Мой типоразмер: НО/ТТ
Has thanked: 1302 times
Been thanked: 364 times

Fleischmann 580904

Повідомлення Санёк-69 »

В новинках на 2009 год Фляйш анонсировал выпуск новой серии прусских вагонов. Насколько понял, в продажу эти модели поступили только в 2010-м. В дальнейшем, серия была продолжена в 2014/2015 годах, и включала новые модели спальных вагонов.

Спальный вагон - Fleischmann 580904

- в отличие от ранее выпускавшихся прусских вагонов (в наборах 1885/4885 и 1898/4898), у спальника новая рама с имитацией заклёпок, и 3-осные тележки:
PS4-001.JPG
PS4-002.JPG
PS4-003.JPG
PS4-004.JPG
PS4-005.JPG
PS4-006.JPG
PS4-007.JPG
PS4-008.JPG
PS4-009.JPG
PS4-010.JPG
PS4-011.JPG
PS4-012.JPG
PS4-013.JPG
PS4-014.JPG
PS4-015.JPG
PS4-016.JPG
PS4-017.JPG
PS4-018.JPG
PS4-019.JPG
PS4-020.JPG
PS4-021.JPG
PS4-022.JPG
С фото интерьеров не сложилось. Ни на одном из этих вагонов не получилось снять крышу, пластик очень жесткий, и прилагать слишком большое усилие побоялся.
Аватар користувача
Санёк-69
Повідомлень: 421
З нами з: 10 лютого 2017, 13:05
Имя: Александр
Звідки: Житомир
Мой типоразмер: НО/ТТ
Has thanked: 1302 times
Been thanked: 364 times

Fleischmann 580901

Повідомлення Санёк-69 »

Ещё одна новинка: пассажирский вагон 1-2 класса (Fleischmann 580901)

- в отличие от ранее выпускавшихся пассажирских вагонов, имеет другое кол-во/расположение оконных проёмов, новую раму с имитацией заклёпок, и 3-осные тележки, внешнее оформление по образцу после 1910 года (когда классы купе стали указываться арабскими цифрами):
PS4-022.JPG
PS4-023.JPG
PS4-024.JPG
PS4-025.JPG
PS4-026.JPG
PS4-027.JPG
PS4-028.JPG
PS4-029.JPG
PS4-030.JPG
PS4-031.JPG
PS4-032.JPG
PS4-033.JPG
PS4-034.JPG
PS4-035.JPG
PS4-036.JPG
PS4-037.JPG
PS4-038.JPG
PS4-039.JPG
PS4-040.JPG
PS4-041.JPG
PS4-042.JPG
PS4-043.JPG
Аватар користувача
Санёк-69
Повідомлень: 421
З нами з: 10 лютого 2017, 13:05
Имя: Александр
Звідки: Житомир
Мой типоразмер: НО/ТТ
Has thanked: 1302 times
Been thanked: 364 times

Fleischmann 580903

Повідомлення Санёк-69 »

Пассажирский вагон 3-го класса (Fleischmann 580903)

- в общем по конструктиву аналогичен раннее выпускавшимся вагоном 3-го класса, отличается внешним оформлением по образцу после 1910 года, и небольшими изменениями в хвостовой части (сложенный сильфон, и сигнальные таблички для обозначения хвоста поезда):
PS4-45.JPG
PS4-44.JPG
PS4-46.JPG
PS4-47.JPG
PS4-48.JPG
PS4-49.JPG
PS4-50.JPG
PS4-51.JPG
PS4-52.JPG
PS4-53.JPG
PS4-54.JPG
PS4-55.JPG
PS4-56.JPG
PS4-57.JPG
PS4-58.JPG
PS4-59.JPG
PS4-60.JPG
PS4-61.JPG
PS4-62.JPG
PS4-63.JPG
PS4-64.JPG
PS4-65.JPG
Аватар користувача
Санёк-69
Повідомлень: 421
З нами з: 10 лютого 2017, 13:05
Имя: Александр
Звідки: Житомир
Мой типоразмер: НО/ТТ
Has thanked: 1302 times
Been thanked: 364 times

Fleischmann 580902

Повідомлення Санёк-69 »

Вагон-ресторан Fleischmann 580902

- в общем по конструктиву аналогичен раннее выпускавшимся вагонам-ресторанам, отличается новыми 3-осными тележками:
PS4-66.JPG
PS4-67.JPG
PS4-68.JPG
PS4-69.JPG
PS4-70.JPG
PS4-71.JPG
PS4-72.JPG
PS4-73.JPG
PS4-74.JPG
PS4-75.JPG
PS4-76.JPG
PS4-77.JPG
PS4-78.JPG
PS4-79.JPG
PS4-80.JPG
PS4-81.JPG
PS4-82.JPG
PS4-83.JPG
PS4-84.JPG
PS4-85.JPG
PS4-86.JPG
PS4-87.JPG
Аватар користувача
Санёк-69
Повідомлень: 421
З нами з: 10 лютого 2017, 13:05
Имя: Александр
Звідки: Житомир
Мой типоразмер: НО/ТТ
Has thanked: 1302 times
Been thanked: 364 times

Re: Schnellzüge K.P.E.V. (2)

Повідомлення Санёк-69 »

Т.к. в новой серии нет багажного вагона, дополнил состав моделью Fleischmann 5880 (из наборов 1898/4898):
PS4-88.JPG
К сожалению, при пересылке модель пострадала. Но благодаря камрадской помощи
железнодорожных мастерских Stinky, вагон был восстановлен до первозданного вида. Честно говоря, просто поражен хирургической точностью проведённых операций (и не только на этом вагоне), - никаких следов ремонта вообще не заметно.

Данный вагон оптимально подходит к составу по датам ревизии, разве что, нужно будет что-то решить с маршрутными табличками.
В описании аналогичного вагона из предыдущей темы нет фото интерьера, т.к. не удалось снять с него крышу, а на этом экземпляре получилось:
PS4-89.JPG
PS4-90.JPG
PS4-91.JPG
PS4-92.JPG
Также в состав добавлен почтовый вагон Fleischmann 5884 (подробнее почтовые вагоны описаны в предыдущей теме):
PS2 -03.jpg
Все вагоны штатно укомплектованы сцепками Fleischmann 6515:
PS4-93.JPG
И в общем получился вот такой симпатичный состав:
PS4-94.JPG
В дальнейшем планирую дополнить состав ещё одним 2-осным спальным вагоном Fleischmann 515602
Аватар користувача
Санёк-69
Повідомлень: 421
З нами з: 10 лютого 2017, 13:05
Имя: Александр
Звідки: Житомир
Мой типоразмер: НО/ТТ
Has thanked: 1302 times
Been thanked: 364 times

Fleischmann 515305 / 515306 / 515602

Повідомлення Санёк-69 »

В 2014 году новая серия дополнилась ещё тремя моделями

2-осный пассажирский вагон 3-го класса Fleischmann 515305 по маршруту: Berlin-Alexandrowo
2014 _ Fleischmann 515305.jpg
2-осный пассажирский вагон 3-го класса Fleischmann 515306 по маршруту: Berlin-Danzig
2014 _ Fleischmann 515306.jpg
2-осный спальный вагон Fleischmann 515602 по маршруту: Berlin-Warschau
2014 _ Fleischmann 515602.jpg
Аватар користувача
Санёк-69
Повідомлень: 421
З нами з: 10 лютого 2017, 13:05
Имя: Александр
Звідки: Житомир
Мой типоразмер: НО/ТТ
Has thanked: 1302 times
Been thanked: 364 times

Fleischmann 515103 / 515307 / 515308

Повідомлення Санёк-69 »

В 2015 году в новой серии вышли ещё три вагона, следующие по маршруту: Berlin-Danzig

3-осный пассажирский вагон 1-2-го класса Fleischmann 515103:
2015 _ Fleischmann 515103.jpg
2-осный пассажирский вагон 3-го класса Fleischmann 515307:
2015 _ Fleischmann 515307.jpg
2-осный пассажирский вагон 3-го класса Fleischmann 515308:
2015 _ Fleischmann 515308.jpg
Аватар користувача
Санёк-69
Повідомлень: 421
З нами з: 10 лютого 2017, 13:05
Имя: Александр
Звідки: Житомир
Мой типоразмер: НО/ТТ
Has thanked: 1302 times
Been thanked: 364 times

Re: Schnellzüge K.P.E.V. (2)

Повідомлення Санёк-69 »

В общем, по маршрутам всех моделей 2010-2015, получается такая картина:

Berlin-Landsberg-Kreuz-Schneidemühl-Bromberg-Thorn-Warschau-Alexandrowo
Berlin-Landsberg-Kreuz-Schneidemühl-Bromberg-Thorn-Warschau
Berlin-Landsberg-Kreuz-Schneidemühl-Danzig

По датам ревизии все вагоны хорошо сочетаются между собой, и в идеале можно было бы собрать большой состав из 10-ти вагонов, на маршруте Берлин-Шнайдемюль.
Далее состав разделится:
- 4-е вагона поедут в Гданьск
- остальные продолжат свой путь до Варшавы
PS4-95.jpg
Но тут будет неувязка по номерам вагонов в составе, т.к. вагон 3-го класса (Fleischmann 580903 из первого выпуска) пересечётся по номеру с 2-осным спальником (Fleischmann 515602 из второго выпуска), - оба этих вагона с номером "5" на табличках:
PS4-96.JPG
Можно собрать два состава: один по маршруту Берлин-Гданьск, второй до Варшавы.
Но тогда маршрут до Гданьска останется без ресторана, и к обоим составам придётся искать багажные вагоны.
Аватар користувача
Санёк-69
Повідомлень: 421
З нами з: 10 лютого 2017, 13:05
Имя: Александр
Звідки: Житомир
Мой типоразмер: НО/ТТ
Has thanked: 1302 times
Been thanked: 364 times

Gepäckwagen K.P.E.V.

Повідомлення Санёк-69 »

А у Фляйша с багажными вагонами не густо, и все они (по надписям на маршрутных табличках) привязаны к определённым наборам. В основном, это самый массовый вариант багажного вагона 1-й эпохи с 1902 года (представлен во всех наборах предыдущей серии, описанной в первой теме).
И ещё одна модель раннего варианта (Fleischmann 5800), выпущенная в 1983 году к набору пассажирских 4-осных каретников:
G-01.jpg
G-02.jpg
G-03.jpg
G-04.jpg
В общем-то, выбор багажных вагонов для скорых поездов 1-й эпохи действительно невелик, но кое-что интересное всё же было.
На первом этапе, в составах скорых поездов ходили 3-осные багажные вагоны, так же использовавшиеся и на обычных пассажирских маршрутах.

С появлением первых моделей пассажирских D-Zug-Wagen_нов, начался параллельный выпуск комбинированных багажно-почтовых 4-осных вагонов

несколько вариантов "коротких" версий (длиной 18,59 м, ставшей в дальнейшем стандартом для 4-осных багажных вагонов 1-й эпохи):
G-05.jpg
G-06.jpg
G-07.jpg
G-08.jpg
G-09.jpg
G-10.jpg
G-11.jpg
и удлиненная версия (20,5 м):
G-12.jpg
G-13.jpg
G-14.jpg
Так же стоит отметить ещё один экзотический вариант комбинации пассажирского вагона с багажным отсеком:
G-15.jpg
G-16.jpg
В 1910 году появились первые багажные вагоны с металлическим каркасом, открывшие новую страницу в истории прусских вагонов. Подробнее об этом уже в следующей теме.
Аватар користувача
Stinky
Супермодератор
Повідомлень: 6232
З нами з: 16 травня 2015, 01:19
Имя: Дионисий
Звідки: Kiew
Мой типоразмер: Н0
Has thanked: 1400 times
Been thanked: 3009 times
Контактна інформація:

Re: Schnellzüge K.P.E.V. (2)

Повідомлення Stinky »

Ух! :o
Спасибо за ваш труд!Читал с упоением.Отдельно благодарю за кучу познавательных картинок,
так грамотно подобранных.Очень понравились чертежи трехосных вагонов с диагональным
тамбуром и центральной дверью.Весьма интересно сделали.Также стало откровением что
надрессорные балки и шкворневые узлы исполнены в древесине. :shock: Да,армированы металлом,
но все же...По моделям от Фляйша мне кажется они были бы еще сочнее на спицованных колпарах. :roll:
Зображення
Аватар користувача
Санёк-69
Повідомлень: 421
З нами з: 10 лютого 2017, 13:05
Имя: Александр
Звідки: Житомир
Мой типоразмер: НО/ТТ
Has thanked: 1302 times
Been thanked: 364 times

Re: Schnellzüge K.P.E.V. (2)

Повідомлення Санёк-69 »

Спасибо!
Stinky писав:По моделям от Фляйша мне кажется они были бы еще сочнее на спицованных колпарах. :roll:
Согласен на все 100%. Со временем заменю все колпары спицованными.
Аватар користувача
youdmit
Повідомлень: 3303
З нами з: 30 липня 2015, 01:48
Имя: ЮрСанич
Звідки: Київ
Мой типоразмер: H0, H0e
Has thanked: 1951 times
Been thanked: 4008 times

Re: Schnellzüge K.P.E.V. (2)

Повідомлення youdmit »

Великолепный обзор!
Александр, спасибо!
Я сотый раз, опять начну сначала... (А.Макаревич)
Аватар користувача
glorg
Повідомлень: 365
З нами з: 03 жовтня 2019, 11:56
Имя: Eugene
Звідки: с большой дороги
Мой типоразмер: Z, N, TT, H0, H0e
Has thanked: 553 times
Been thanked: 635 times

Re: Schnellzüge K.P.E.V. (2)

Повідомлення glorg »

Большое спасибо за великолепный обзор, исторический экскурс и, особенно, обзор тележек!
Аватар користувача
Барбос
Повідомлень: 1718
З нами з: 20 березня 2016, 18:18
Имя: Саша
Звідки: Запорожье
Мой типоразмер: СЖД
Has thanked: 531 times
Been thanked: 525 times

Re: Schnellzüge K.P.E.V. (2)

Повідомлення Барбос »

Мощная авторская работа!
Аватар користувача
T-1000
Повідомлень: 2589
З нами з: 13 травня 2016, 23:55
Имя: Вилен
Звідки: Белополье
Мой типоразмер: HO, H0
Has thanked: 26 times
Been thanked: 136 times
Контактна інформація:

Re: Schnellzüge K.P.E.V. (2)

Повідомлення T-1000 »

Прекрасно расписанная статья! Скажите, а про рейнгольдци будет статья?
Аватар користувача
Санёк-69
Повідомлень: 421
З нами з: 10 лютого 2017, 13:05
Имя: Александр
Звідки: Житомир
Мой типоразмер: НО/ТТ
Has thanked: 1302 times
Been thanked: 364 times

Re: Schnellzüge K.P.E.V. (2)

Повідомлення Санёк-69 »

Всем спасибо за интерес к теме!
T-1000 писав:…а про рейнгольдци будет статья?
Пока вряд ли. Так далеко ещё не добрался, в 1-й эпохе застрял.
Аватар користувача
Muton
Повідомлень: 3973
З нами з: 11 травня 2015, 23:12
Имя: Вітя
Звідки: Київ
Мой типоразмер: НО
Has thanked: 1027 times
Been thanked: 1163 times

Re: Schnellzüge K.P.E.V. (2)

Повідомлення Muton »

Шикарный обзор, прочитал с удовольствием, как и первую часть. Огромное Вам спасибо за потраченное время!
Відповісти

Повернутись до “Огляди та тести моделей”